
Квадро Хаус 4×6 м
Выберите размер:
Базовая комплектация
- Вход с торца
- Печь для бани ТМФ Саяны Cast Витра
- Бак для воды на 50 л из нержавеющей стали
- Дымоход в сборе из нержавеющей стали
- Термо-полки и трапик в парной
- Стол и 2 лавочки в комнате отдыха
- Комплект электрики и освещения
- Крыша из гибкой черепицы (цвет на выбор)
- Защита от нагрева из минерита
- Входная дверь глухая, в парную - со стеклом
- Обработка защитным составом снаружи (2 слоя)
- Форточка в парном отделении 30х40 см
- Ступенька перед входом
- Разуклонный пол с гидроизоляцией и сливом в парной
Создайте баню своей мечты
Настройте каждую деталь под себя, чтобы отдых приносил максимум удовольствия. Мы позаботились о том, чтобы выбор был легким и приятным.
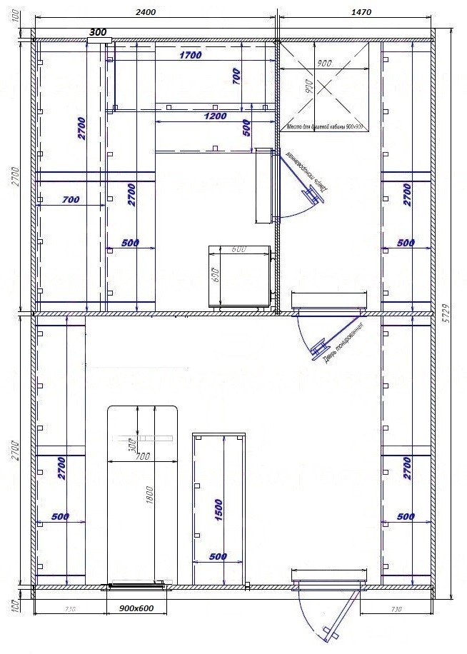
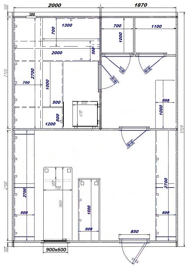
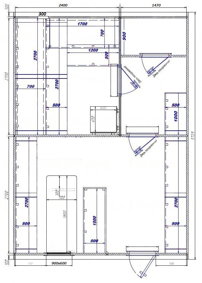
Выбор планировки
Нажмите на планировку, чтобы выбрать её для коммерческого предложения. Значок лупы в углу открывает просмотр в полный размер.



Из какого дерева сделан корпус бани?
Корпус бани из ели — классика русской бани. Доска камерной сушки (влажность 12%) не трескается, не коробится и держит тепло. Натуральный хвойный аромат наполняет парную с первой топки. Отличный выбор по соотношению цены и качества.

Как мы соберём вашу баню?
Идеальный вариант, если к месту установки может подъехать грузовая машина, а ширина бани не превышает 2.5 метра. Мы привезем уже собранную баню и установим её за 1 час.

Расположение входной двери
Современная дверь ПВХ с торца. Отличная теплоизоляция и долговечность. Идеальный выбор для тех, кто ценит практичность и не хочет беспокоиться о защите деревянной двери от влаги и перепадов температур.

Где будет топка?
Топка внутри парной. Классика жанра: вы подкидываете дрова, не отрываясь от процедур, и наблюдаете за игрой огня через стекло печи прямо в парилке.

Какой дизайн защиты печи выберем?
Базовая защита из минерита. Надежный и безопасный материал, который защищает стены от нагрева.

Какую модель печи выберем?
Печь для бани ТМФ Саяны Cast Витра. Мощная печь-сетка для просторных парных до 18 куб.м. Стильный прозрачный экран «Витра» позволяет любоваться живым огнём прямо из парной. Жаростойкая сталь, открытая сетчатая каменка и продуманная конвекция обеспечивают равномерный жар и насыщенный пар. Российское производство — надёжность, проверенная годами.

Какого цвета будет дымоход?


Какое окно поставим в комнате отдыха?
Представьте: вы пьете чай после парения и смотрите на свой сад. Окно с двухкамерным стеклопакетом и тонировкой сохранит тепло и приватность, добавив уюта.
- Фрамуга (открытие на себя) для проветривания
- Двухкамерный стеклопакет с тонировкой
- Профиль с внешней ламинацией

Нужно ли дополнительное окно в стене?


Какие окна будут в парной?



Какую мебель добавим для удобства?






Какой вариант душевой вам подходит?
Изолированное пространство для комфортного мытья. Включает: разуклонный пол с гидроизоляцией и сливом — никакой сырости, только чистота и порядок.
Душевая, совмещённая с проходом из парной — удобный лаконичный маршрут. Включает: разуклонный пол с гидроизоляцией и сливом — надёжная защита от влаги на годы вперёд.

Какие опции по сантехнике нужны?








Что по электрике и розеткам?
В базовую цену уже включено:
- Вся проводка из негорючего кабеля ВВГнг (ГОСТ) — безопасно и надёжно
- Заземление по всей бане — соответствие нормам электробезопасности
- Освещение во всех помещениях
- 1 розетка в комнате отдыха






Покрытие пола
Деревянный пол входит в базу. Можно добавить кварц-винил, тёплый пол или оба сразу — они суммируются



Будем утеплять пол?
Что входит в утепление пола:
- ✦Каменная вата 150 мм — надёжный утеплитель, не горит, не боится влаги и отлично держит тепло даже в сильные морозы
- ✦Ветрозащита — специальная мембрана защищает утеплитель от продуваний снизу
- ✦Защита от грызунов — металлическая сетка по периметру, чтобы утеплитель всегда оставался в целости
В какой цвет покрасим баню?










Какой цвет выберем для торцов и наличников?

Какой цвет кровли подойдет к вашему участку?




На что будем ставить баню?


Добавим приятных мелочей?






Финальные штрихи для идеального отдыха?
















Какой подарок выберете?




Куда доставим вашу баню?
Для рассчета цены доставки, выберите вначале ближайший к вам город отгрузки


Как вам удобнее оплатить?



Расчёт для КП
Сумма по конфигурации: 690 000 ₽
Итог вашей комплектации
Квадро Хаус
Квадро Хаус 4x6м
- Размер: 6х4 м
- Материал корпуса: ель
- Поставка: готовая баня (манипулятор)
- Печь: в парной
Предварительная стоимость
690 000 ₽
Цена без доставки и дополнительных работ, точный расчет после уточнения деталей
Примеры Работ
листайте вбок

Ежедневно, с 10:00 до 18:00
Москва
ТЦ Синдика, МКАД 65 км
Санкт-Петербург
Парголово, Выборгское ш., 212
«Озерки», место 31А
Выставки
В Москве (Строгино, «Синдика») и в Санкт-Петербурге — Ждём вас, Ежедневно, с 10:00 до 18:00 — потрогайте дерево, загляните внутрь, сравните модели в спокойном темпе. На площадках более 10 решений; менеджер ответит на вопросы без навязчивых продаж и подскажет сроки изготовления от трёх недель и старт цен от 320 000 ₽.
Записаться на посещение
Оставьте контакт — позвоним и выберем удобное время для визита
Контакты
Звоните, пишите в мессенджер или приезжайте — ответим на любые вопросы
Санкт-Петербург
Пос. Парголово,
Выборгское шоссе, 212
«Озерки», место 31А
Часы работы
Ждём вас
Ежедневно, с 10:00 до 18:00
Выходных нет
Справочно
Всё, что полезно знать перед заказом
Ниже — краткая справка о модели и условиях заказа без дублирования конфигуратора. Изготовление от трёх недель, старт цен — от 320 000 ₽, выставки в Москве и Санкт-Петербурге.
Модель и комплектация
О модели
Шесть метров длины — максимум для линейки 4 м шириной: простор для сценариев «баня + гостевая».
Характеристики
Монтаж
Планируйте кран или сборку на месте.
Комплектация
Расширенный конфигуратор с мебелью и доп. опциями.
Участок и конструкция
Для какого участка подходит
Нужна глубина участка под 6 м.
Преимущества конструкции
Флагман серии — усиленный контроль геометрии при установке.
Доставка и стоимость
Доставка и установка
«Квадро Хаус 4×6 м» можно привезти манипулятором в собранном виде (если подъезд позволяет) или собрать на участке за 1–2 дня. Подготовим рекомендации по площадке и опорам под ваш грунт.
Отгружаем со производства в Вологде. Стоимость доставки рассчитываем отдельно под ваш город и выбранный способ перевозки.
Стоимость и что влияет на цену
Топ ценового диапазона линейки Квадро Хаус.
Вопросы и детали
Частые вопросы
Коротко закрываем типовые вопросы; детали по региону и участку — у менеджера.
- Есть кухонный блок?
- Для 4×6 доступны доп. позиции мебели в конфигураторе.
- Из чего складывается итоговая цена?
- В базу входят комплектация линейки, размер и выбранные опции в конфигураторе: печь, окна, отделка, доставка и монтаж. Менеджер поможет собрать вариант без лишнего.
- Доставка в мой регион?
- Отправляем по России; стоимость — после уточнения города и способа.
Мах